中野区・杉並区の最新不動産なら株式会社ライヴス


東京都中野区 沼袋3丁目 新築戸建

販売価格 7980万円 建物面積 111.85m²
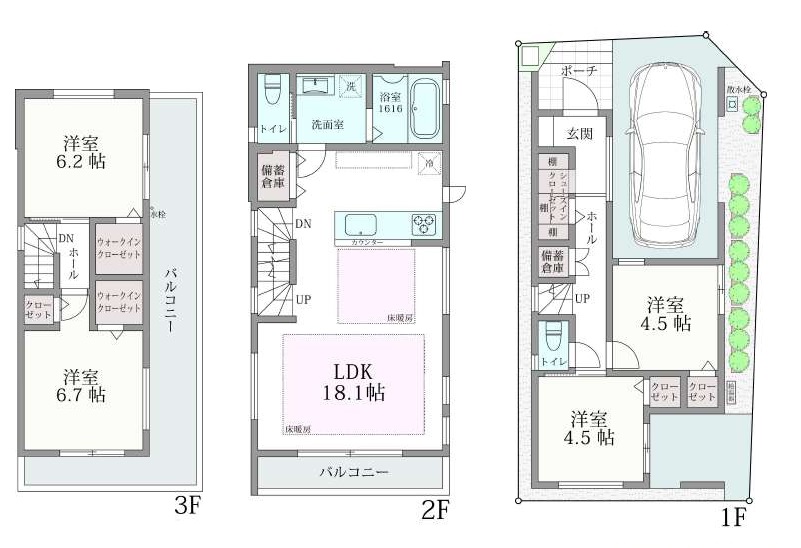
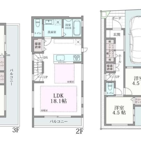
階数 地上3階 間取り 4LDK
建物構造 木造 取引態様 一般
所在地 東京都中野区 沼袋3丁目
交通 西武新宿線沼袋駅 徒歩4分
お問合せ候補に追加
 

物件写真


物件詳細  沼袋3丁目 新築戸建 全2棟

物件種別 新築戸建 間取り 4LDK
価格 7980万円 建築年月 2025/12
建物構造 木造 階数(地下) 地上3階
土地面積(区画面積) 65m²(実測) 土地権利 所有権
用途地域 第一種低層住居専 都市計画 市街化区域
現況 未完成 引渡・入居時期 相談
建ぺい率 60 容積率 150
セットバック 私道負担
借地料 借地契約年月
間取り内訳 1階洋室4.5畳 1階洋室4.5畳 2階LDK18畳 3階洋室6.5畳 3階洋室4.5畳     
周辺環境 ■沼袋保育園...約440m■平和の森公園...約350m■セブンイレブン...約310m
設備・条件 角地 ガスコンロ 三口コンロ システムキッチン カウンターキッチン 食器洗い乾燥機 給湯 追い焚き 洗髪洗面化粧台 独立洗面台 浴室乾燥機 ユニットバス バス・トイレ別 温水洗浄便座 床暖房 W.INクローゼット TVドアホン カードキーシステム 都市ガス 宅配ボックス A号棟7,980万円 B号棟8,280万円
小学校 緑野小学校...約620m 中学校 緑野中学校...約690m
物件番号 情報有効期限
■北東角地を含む全2棟■ゆとりの4LDK+車庫■屋上には開放感のあるルーフバルコニー■パントリーやシューズインクローゼット、ウォークインクローゼットなど収納豊富■ガス乾燥機の乾太くん設置■前面道路は広々5.5m■駅徒歩4分の好立地■閑静な住宅街

お問合せ物件番号 

株式会社ライヴス 東京都中野区中野4丁目5番1号 中野KIビル3階 TEL: 03-6454-0050 FAX: 03-6454-0051 宅建免許番号: 東京都知事免許(4)第86913号

条件の近い物件

  • 沼袋1丁目 新築戸建 全1棟10980万円 4LDK
    中野区 沼袋1丁目

    西武新宿線沼袋駅
  • 野方2丁目 新築戸建 全3棟7380万円 3LDK
    中野区 野方2丁目

    西武新宿線沼袋駅
  • 沼袋2丁目 新築戸建 全3棟7180万円 3LDK
    中野区 沼袋2丁目

    西武新宿線沼袋駅
pagetop
Fudousan Plugin Ver.1.5.5