中野区・杉並区の最新不動産なら株式会社ライヴス


東京都杉並区 方南2丁目 中古マンション

販売価格 3080万円 専有面積 40.5m²
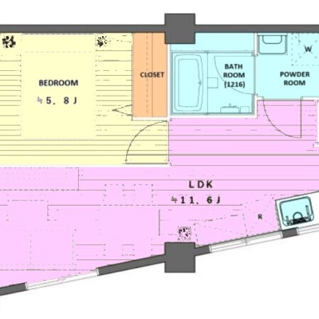
階数 4階 / 地上8階 間取り 1LDK
築年月 1974/01 取引態様
所在地 東京都杉並区 方南2丁目
交通 東京メトロ丸ノ内線方南町駅 徒歩2分
お問合せ候補に追加
 

物件写真


物件詳細  マンション方南町

物件種別 中古マンション 間取り 1LDK
価格 3080万円 専有面積 40.5m²
共益費・管理費 13600円 バルコニー面積 5.7m²
修繕積立金 14800円 向き
階数 4階 / 地上8階 建物構造 RC
管理人 管理形態 全部委託 
建築年月 1974/01 新築・未入居区分 中古
現況 空家 引渡・入居時期 相談
建ぺい率 容積率
駐車場区分 駐車場料金
駐車場備考
間取り内訳 LDK11.6畳1室  洋室5.8畳1室         
周辺環境
設備・条件 角部屋 リノベーション システムキッチン 食器洗い乾燥機 給湯 独立洗面台 浴室乾燥機 ユニットバス 温水洗浄便座 室内洗濯機置き場 TVドアホン エレベータ バルコニー フローリング
小学校 中学校
物件番号 100136769970 情報有効期限
新規内装リフォーム済!角部屋!

お問合せ物件番号 100136769970

株式会社ライヴス 東京都中野区中野4丁目5番1号 中野KIビル3階 TEL: 03-6454-0050 FAX: 03-6454-0051 宅建免許番号: 東京都知事免許(4)第86913号

条件の近い物件

  • 杉並区堀ノ内1丁目 中古マンション3790万円 1LDK
    杉並区 堀ノ内1丁目

    東京メトロ丸ノ内線方南町駅

  • 杉並区 方南2丁目
  • 杉並区方南2丁目 中古マンション3180万円 2DK
    杉並区 方南2丁目

    東京メトロ丸ノ内線方南町駅
pagetop
Fudousan Plugin Ver.1.5.5