中野区・杉並区の最新不動産なら株式会社ライヴス


東京都中野区 松が丘1丁目 中古マンション

販売価格 3980万円 専有面積 60.84m² (壁芯)
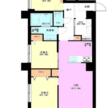
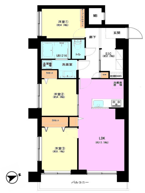
階数 2階 / 地上8階 間取り 3LDK
築年月 1974/12 取引態様
所在地 東京都中野区 松が丘1丁目
交通 西武新宿線新井薬師前駅 徒歩8分
お問合せ候補に追加
 

物件写真


物件詳細  パシフィック松が丘

物件種別 中古マンション 間取り 3LDK
価格 3980万円 専有面積 60.84m² (壁芯)
共益費・管理費 16800円 バルコニー面積
修繕積立金 14100円 向き
階数 2階 / 地上8階 建物構造 RC
管理人 管理人巡回  管理形態 一部委託 
建築年月 1974/12 新築・未入居区分 中古
現況 空家 引渡・入居時期 相談
建ぺい率 容積率
駐車場区分 駐車場料金
駐車場備考
間取り内訳 LDK13.5畳1室  洋室5.1畳1室  洋室4.3畳2室        
周辺環境
設備・条件 ペット可能 角部屋 リノベーション システムキッチン カウンターキッチン 食器洗い乾燥機 給湯 追い焚き 独立洗面台 浴室乾燥機 ユニットバス 室内洗濯機置き場 インターネット有 オートロック エレベータ バルコニー フローリング
小学校 中学校
物件番号 100137451267 情報有効期限
新規内装リフォーム済!ペット飼育可!角部屋!

お問合せ物件番号 100137451267

株式会社ライヴス 東京都中野区中野4丁目5番1号 中野KIビル3階 TEL: 03-6454-0050 FAX: 03-6454-0051 宅建免許番号: 東京都知事免許(4)第86913号

条件の近い物件

  • 中野区新井5丁目 中古マンション8980万円 2LDK
    中野区 新井5丁目

    西武新宿線新井薬師前駅

  • 中野区 松が丘1丁目
  • 中野区江古田1丁目 中古マンション6590万円 3LDK
    中野区 江古田1丁目

    西武新宿線新井薬師前駅
pagetop
Fudousan Plugin Ver.1.5.5