中野区・杉並区の最新不動産なら株式会社ライヴス


東京都杉並区 和田2丁目 中古戸建

販売価格 6480万円 建物面積 64.48m²
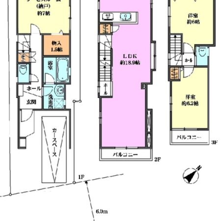
階数 地上2階 間取り 3LDK
建物構造 木造 取引態様
所在地 東京都杉並区 和田2丁目
交通 東京メトロ丸ノ内線東高円寺駅 徒歩13分
東京メトロ丸ノ内線中野富士見町駅 徒歩12分
お問合せ候補に追加
 

物件写真


物件詳細  

物件種別 中古戸建 間取り 3LDK
価格 6480万円 建築年月 1984/11
建物構造 木造 階数(地下) 地上2階
土地面積(区画面積) 54.27m²(公簿) 土地権利 所有権
用途地域 都市計画
現況 空家 引渡・入居時期 相談
建ぺい率 容積率
セットバック 私道負担
借地料 借地契約年月
間取り内訳 1階LDK12畳1室  2階洋室5.6畳1室  2階洋室5.1畳1室  2階洋室4.2畳1室      
周辺環境
設備・条件 リノベーション システムキッチン 食器洗い乾燥機 給湯 追い焚き 独立洗面台 浴室乾燥機 ユニットバス 温水洗浄便座 室内洗濯機置き場 TVドアホン 都市ガス 公営水道 排水下水 バルコニー フローリング
小学校 中学校
物件番号 100137666842 情報有効期限
新規内装リフォーム済!

お問合せ物件番号 100137666842

株式会社ライヴス 東京都中野区中野4丁目5番1号 中野KIビル3階 TEL: 03-6454-0050 FAX: 03-6454-0051 宅建免許番号: 東京都知事免許(4)第86913号

条件の近い物件

  • 杉並区和田3丁目 中古戸建7480万円 2SLDK
    杉並区 和田3丁目

    東京メトロ丸ノ内線東高円寺駅
pagetop
Fudousan Plugin Ver.1.5.5