中野区・杉並区の最新不動産なら株式会社ライヴス


東京都杉並区 和田3丁目 中古戸建

販売価格 7480万円 建物面積 90.81m²
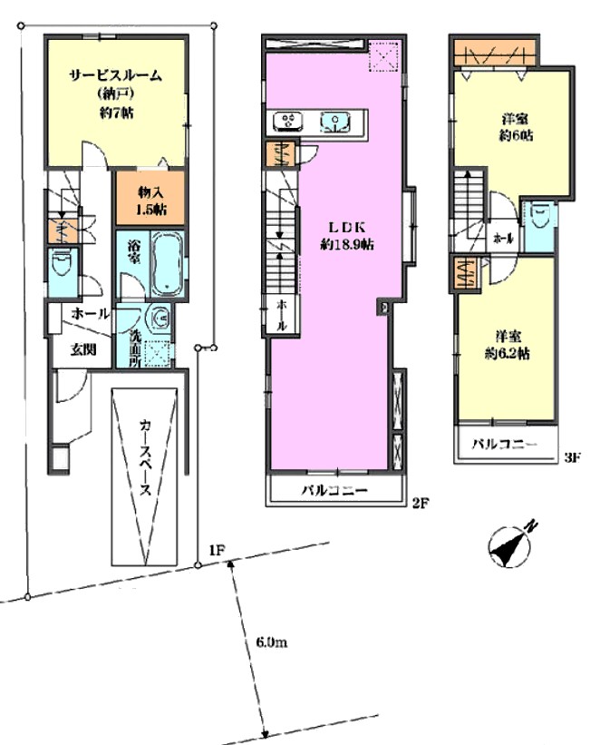
階数 地上3階 間取り 2SLDK
建物構造 木造 取引態様
所在地 東京都杉並区 和田3丁目
交通 東京メトロ丸ノ内線東高円寺駅 徒歩10分
お問合せ候補に追加
 

物件写真


物件詳細  

物件種別 中古戸建 間取り 2SLDK
価格 7480万円 建築年月 2012/05
建物構造 木造 階数(地下) 地上3階
土地面積(区画面積) 61.76m²(実測) 土地権利 所有権
用途地域 都市計画
現況 居住中 引渡・入居時期 期日指定 2026/05中旬
建ぺい率 容積率
セットバック 私道負担
借地料 借地契約年月
間取り内訳 2階LDK18.9畳1室  3階洋室6.2畳1室  3階洋室6畳1室  1階S7畳1室      
周辺環境
設備・条件 食器洗い乾燥機 給湯 追い焚き 独立洗面台 浴室乾燥機 ユニットバス エアコン 床暖房 室内洗濯機置き場 TVドアホン 都市ガス 公営水道 排水下水 駐車場有 バルコニー
小学校 中学校
物件番号 100137278739 情報有効期限
リフォーム履歴有り!

お問合せ物件番号 100137278739

株式会社ライヴス 東京都中野区中野4丁目5番1号 中野KIビル3階 TEL: 03-6454-0050 FAX: 03-6454-0051 宅建免許番号: 東京都知事免許(4)第86913号

条件の近い物件

  • 杉並区和田2丁目 中古戸建6480万円 3LDK
    杉並区 和田2丁目

    東京メトロ丸ノ内線東高円寺駅
pagetop
Fudousan Plugin Ver.1.5.5