中野区・杉並区の最新不動産なら株式会社ライヴス


東京都杉並区 高井戸東4丁目 中古戸建

販売価格 9790万円 建物面積 82.38m²
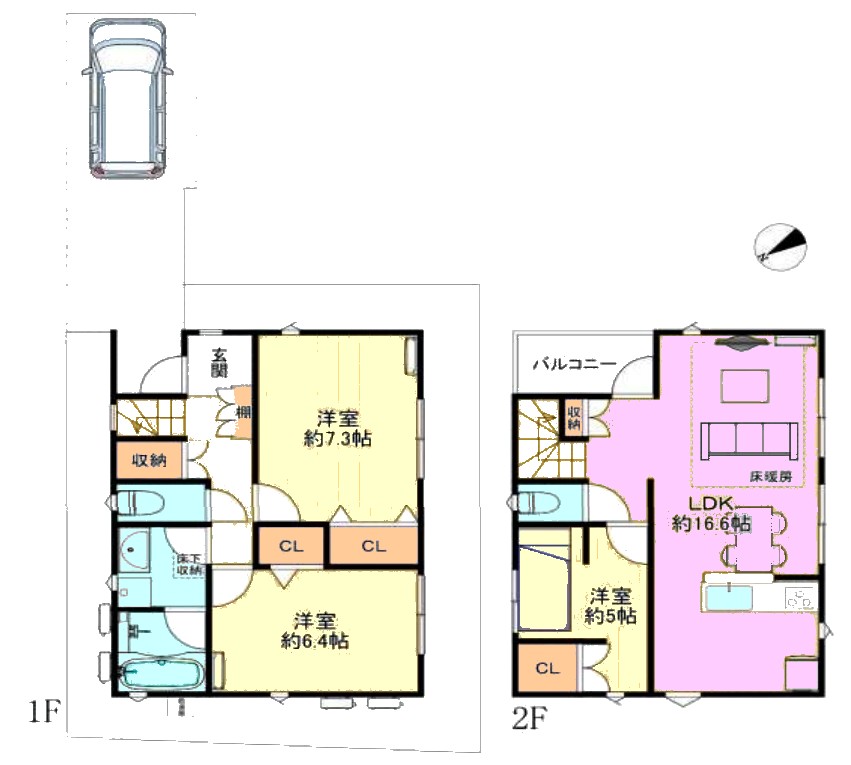
階数 地上2階 間取り 3LDK
建物構造 木造 取引態様
所在地 東京都杉並区 高井戸東4丁目
交通 京王井の頭線高井戸駅 徒歩15分
京王井の頭線浜田山駅 徒歩15分
お問合せ候補に追加
 

物件写真


物件詳細  

物件種別 中古戸建 間取り 3LDK
価格 9790万円 建築年月 2022/08
建物構造 木造 階数(地下) 地上2階
土地面積(区画面積) 101.52m²(公簿) 土地権利 所有権
用途地域 都市計画
現況 居住中 引渡・入居時期 相談
建ぺい率 容積率
セットバック 私道負担
借地料 借地契約年月
間取り内訳 2階LDK16.6畳1室  2階洋室5畳1室  1階洋室7.3畳1室  1階洋室6.4畳1室      
周辺環境
設備・条件 システムキッチン 独立洗面台 ユニットバス 石油暖房 エアコン 床暖房 室内洗濯機置き場 都市ガス 公営水道 排水下水 駐車場有 バルコニー フローリング
小学校 中学校
物件番号 100137841594 情報有効期限
2駅利用可!

お問合せ物件番号 100137841594

株式会社ライヴス 東京都中野区中野4丁目5番1号 中野KIビル3階 TEL: 03-6454-0050 FAX: 03-6454-0051 宅建免許番号: 東京都知事免許(4)第86913号

条件の近い物件


  • 杉並区 高井戸東2丁目

  • 杉並区 宮前2丁目

  • 杉並区 高井戸東2丁目
pagetop
Fudousan Plugin Ver.1.5.5