中野区・杉並区の最新不動産なら株式会社ライヴス


東京都杉並区 和泉3丁目 新築戸建

販売価格 11800万円 建物面積 108.2m²
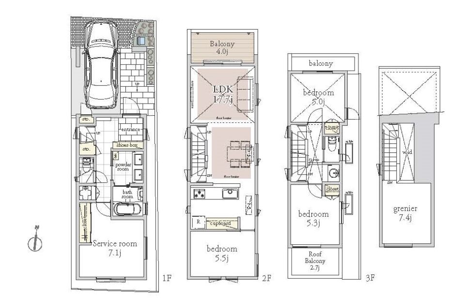
階数 地上3階 間取り 4LDK
建物構造 木造 取引態様 一般
所在地 東京都杉並区 和泉3丁目
交通 京王井の頭線永福町駅 徒歩7分
お問合せ候補に追加
 

物件写真


物件詳細  

物件種別 新築戸建 間取り 4LDK
価格 11800万円 建築年月 2024/4
建物構造 木造 階数(地下) 地上3階
土地面積(区画面積) 66.7m²(実測) 土地権利 所有権
用途地域 第一種中高層住居専用 都市計画 市街化区域
現況 完成済 引渡・入居時期 即時
建ぺい率 60 容積率 160
セットバック 私道負担
借地料 借地契約年月
間取り内訳 1階洋室7.1畳 2階LDK17.7畳 2階洋室5.5畳 3階洋室5.3畳 3階洋室5畳     
周辺環境
設備・条件 ガスコンロ 三口コンロ システムキッチン カウンターキッチン 食器洗い乾燥機 給湯 追い焚き 洗髪洗面化粧台 独立洗面台 浴室乾燥機 ユニットバス バス・トイレ別 温水洗浄便座 床暖房 ロフト付き TVドアホン
小学校 中学校
物件番号 情報有効期限
■全2棟の最終1棟■完成済みですので、いつでもご見学可能でございます■ゆとりの4LDK+P■LDKは広々17.7帖■バルコニーは広々4帖■主寝室はゆとりのある7.1帖■季節物などの収納に便利な固定階段のグルニエ7.4帖付

お問合せ物件番号 

株式会社ライヴス 東京都中野区中野4丁目5番1号 中野KIビル3階 TEL: 03-6454-0050 FAX: 03-6454-0051 宅建免許番号: 東京都知事免許(4)第86913号
pagetop
Fudousan Plugin Ver.1.5.5