中野区・杉並区の最新不動産なら株式会社ライヴス


東京都杉並区 上井草2丁目 新築戸建

販売価格 5680万円 建物面積 63.47m²
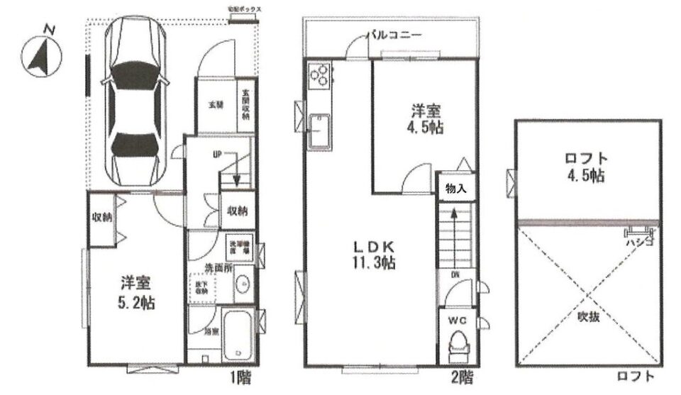
階数 地上2階 間取り 2LDK
建物構造 木造 取引態様 一般
所在地 東京都杉並区 上井草2丁目
交通 西武新宿線井荻駅 徒歩11分
西武新宿線上井草駅 徒歩11分
お問合せ候補に追加
 

物件写真


物件詳細  

物件種別 新築戸建 間取り 2LDK
価格 5680万円 建築年月 2024/3
建物構造 木造 階数(地下) 地上2階
土地面積(区画面積) 51.55m²(実測) 土地権利 所有権
用途地域 第一種低層住居専 都市計画 市街化区域
現況 完成済 引渡・入居時期 即時
建ぺい率 50 容積率 100
セットバック 私道負担
借地料 借地契約年月
間取り内訳 1階洋室5.2畳 2階洋室4.5畳 2階LDK11.3畳       
周辺環境
設備・条件 ガスコンロ 三口コンロ システムキッチン 食器洗い乾燥機 給湯 追い焚き 洗髪洗面化粧台 独立洗面台 浴室乾燥機 ユニットバス バス・トイレ別 温水洗浄便座 床下収納 TVドアホン
小学校 中学校
物件番号 情報有効期限
■限定1棟■完成済みですので、いつでもご見学可能でございます■2LDK+ロフト4.5帖+P■リビングは開放感のある吹抜け■北側4.5m公道に面す■イトーピアホーム施行

お問合せ物件番号 

株式会社ライヴス 東京都中野区中野4丁目5番1号 中野KIビル3階 TEL: 03-6454-0050 FAX: 03-6454-0051 宅建免許番号: 東京都知事免許(4)第86913号

条件の近い物件

  • 井草2丁目 新築戸建 全2棟6780万円 3LDK
    杉並区 井草2丁目

    西武新宿線井荻駅
pagetop
Fudousan Plugin Ver.1.5.5