中野区・杉並区の最新不動産なら株式会社ライヴス


東京都中野区 白鷺3丁目 新築戸建

販売価格 8999万円 建物面積 114.63m²
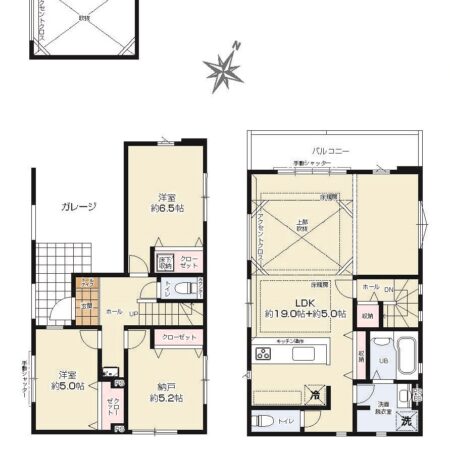
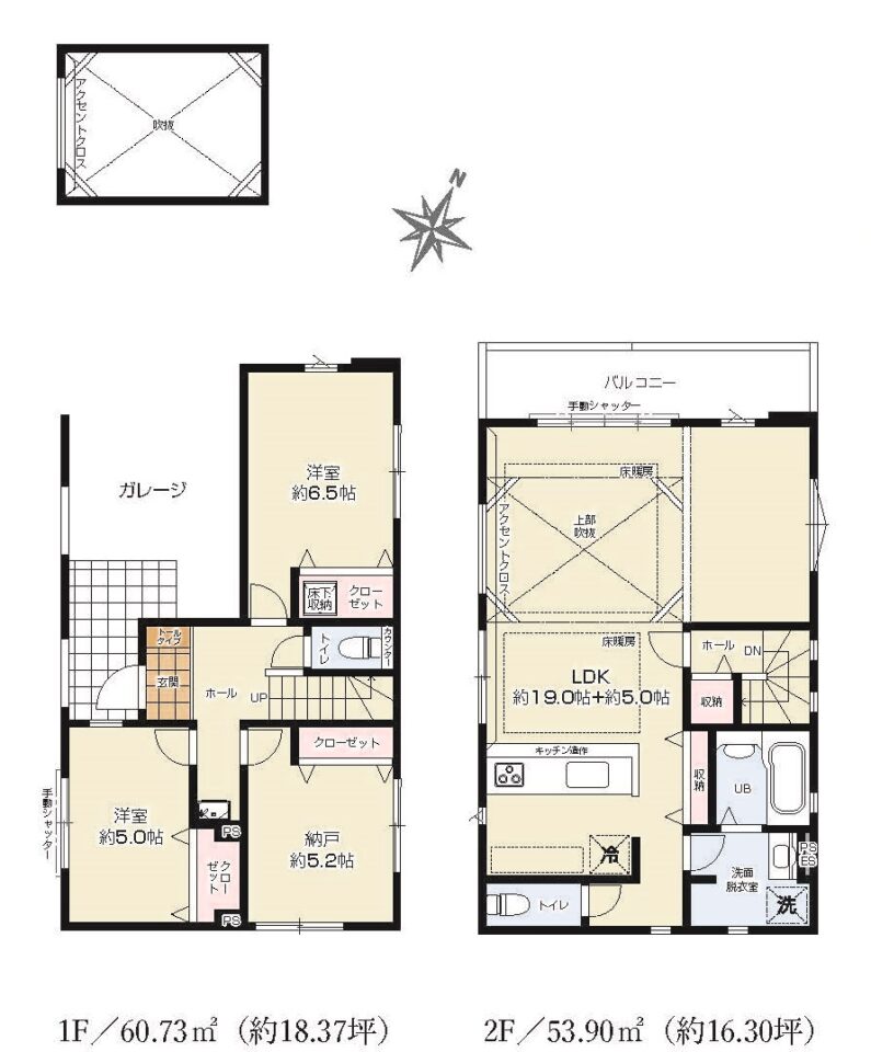
階数 地上2階 間取り 3LDK
建物構造 木造 取引態様 一般
所在地 東京都中野区 白鷺3丁目
交通 西武新宿線下井草駅 徒歩8分
西武新宿線鷺ノ宮駅 徒歩10分
お問合せ候補に追加
 

物件写真


物件詳細  白鷺3丁目 新築戸建 全2棟

物件種別 新築戸建 間取り 3LDK
価格 8999万円 建築年月 2025/7
建物構造 木造 階数(地下) 地上2階
土地面積(区画面積) 95.25m²(実測) 土地権利 所有権
用途地域 第一種低層住居専 都市計画 市街化区域
現況 完成済 引渡・入居時期 相談
建ぺい率 60 容積率 150
セットバック 私道負担
借地料 借地契約年月
間取り内訳 1階洋室6.5畳 1階洋室5.2畳 1階洋室5畳 2階LDK24畳      
周辺環境 ■オーケー...約350m■ファミリーマート...約700m
設備・条件 角地 ガスコンロ 三口コンロ システムキッチン カウンターキッチン 食器洗い乾燥機 給湯 追い焚き 洗髪洗面化粧台 独立洗面台 バス専用 浴室乾燥機 ユニットバス バス・トイレ別 温水洗浄便座 床暖房 床下収納 TVドアホン 1号棟9,199万円 2号棟8,999万円
小学校 鷺の杜小学校...約550m 中学校 明和中学校...約2,200m
物件番号 情報有効期限
■北西角地を含む全2棟■ゆとりの3LDK+車庫■LDKは広々21帖■リビングは開放感のある吹抜け■急行停車駅の鷺ノ宮駅まで徒歩10分の好立地

お問合せ物件番号 

株式会社ライヴス 東京都中野区中野4丁目5番1号 中野KIビル3階 TEL: 03-6454-0050 FAX: 03-6454-0051 宅建免許番号: 東京都知事免許(4)第86913号
pagetop
Fudousan Plugin Ver.1.5.5