中野区・杉並区の最新不動産なら株式会社ライヴス


東京都杉並区 成田東2丁目 中古戸建

販売価格 7980万円 建物面積 109.93m²
階数 地上2階 間取り 4LDK
建物構造 軽量鉄骨 取引態様
所在地 東京都杉並区 成田東2丁目
交通 京王井の頭線浜田山駅 徒歩16分
京王井の頭線西永福駅 徒歩17分
お問合せ候補に追加
 

物件写真


物件詳細  

物件種別 中古戸建 間取り 4LDK
価格 7980万円 建築年月 2005/08
建物構造 軽量鉄骨 階数(地下) 地上2階
土地面積(区画面積) 120.52m²(公簿) 土地権利 所有権
用途地域 都市計画
現況 居住中 引渡・入居時期 期日指定 2026/04下旬
建ぺい率 容積率
セットバック 私道負担
借地料 借地契約年月
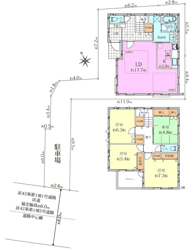
間取り内訳 1階LDK17.7畳1室  2階和室4.8畳1室  2階洋室7.3畳1室  2階和室6.3畳1室 2階洋室5.4畳1室     
周辺環境
設備・条件 独立洗面台 床暖房 床下収納 室内洗濯機置き場 都市ガス 公営水道 排水下水 駐車場有 バルコニー
小学校 中学校
物件番号 100134752735 情報有効期限
軽量鉄骨造!

お問合せ物件番号 100134752735

株式会社ライヴス 東京都中野区中野4丁目5番1号 中野KIビル3階 TEL: 03-6454-0050 FAX: 03-6454-0051 宅建免許番号: 東京都知事免許(4)第86913号

条件の近い物件


  • 杉並区 下高井戸5丁目

  • 杉並区 高井戸東3丁目
pagetop
Fudousan Plugin Ver.1.5.5