中野区・杉並区の最新不動産なら株式会社ライヴス


東京都杉並区 西荻北4丁目 中古マンション

販売価格 6999万円 専有面積 54.08m²
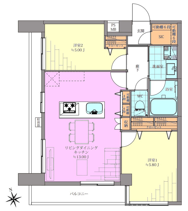
階数 4階 / 地上6階 間取り 2LDK
築年月 1987/02 取引態様
所在地 東京都杉並区 西荻北4丁目
交通 JR中央線西荻窪駅 徒歩7分
JR総武線西荻窪駅 徒歩7分
お問合せ候補に追加
 

物件写真


物件詳細  ベルハイム西荻窪第3

物件種別 中古マンション 間取り 2LDK
価格 6999万円 専有面積 54.08m²
共益費・管理費 21090円 バルコニー面積 4m²
修繕積立金 12710円 向き
階数 4階 / 地上6階 建物構造 RC
管理人 管理人日勤  管理形態 全部委託 
建築年月 1987/02 新築・未入居区分 中古
現況 空家 引渡・入居時期 相談
建ぺい率 容積率
駐車場区分 駐車場料金
駐車場備考
間取り内訳 LDK13畳1室  洋室5.8畳1室  洋室5畳1室        
周辺環境
設備・条件 角部屋 リノベーション システムキッチン 食器洗い乾燥機 給湯 追い焚き 独立洗面台 浴室乾燥機 ユニットバス 室内洗濯機置き場 オートロック TVドアホン エレベータ 駐車場有 駐輪場 バイク置き場 バルコニー フローリング タイル貼り
小学校 中学校
物件番号 100135394522 情報有効期限
新規内装リフォーム中!

お問合せ物件番号 100135394522

株式会社ライヴス 東京都中野区中野4丁目5番1号 中野KIビル3階 TEL: 03-6454-0050 FAX: 03-6454-0051 宅建免許番号: 東京都知事免許(4)第86913号

条件の近い物件

  • new
    杉並区西荻北2丁目 中古マンション3800万円 1LDK
    杉並区 西荻北2丁目

    JR中央線西荻窪駅

  • 杉並区 西荻北2丁目
  • up

    杉並区 西荻南2丁目
pagetop
Fudousan Plugin Ver.1.5.5