中野区・杉並区の最新不動産なら株式会社ライヴス


東京都中野区 中央3丁目 中古マンション

販売価格 1780万円 専有面積 54.02m²
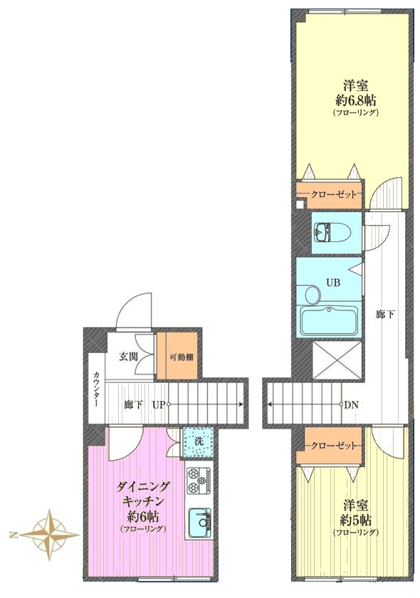
階数 7階 / 地上11階 間取り 2DK
築年月 1967/01 取引態様
所在地 東京都中野区 中央3丁目
交通 東京メトロ丸ノ内線新中野駅 徒歩6分
都営大江戸線中野坂上駅 徒歩9分
お問合せ候補に追加
 

物件写真


物件詳細  鍋屋横丁住宅

物件種別 中古マンション 間取り 2DK
価格 1780万円 専有面積 54.02m²
共益費・管理費 12742円 バルコニー面積
修繕積立金 7170円 向き
階数 7階 / 地上11階 建物構造 SRC
管理人 管理形態 自主管理 
建築年月 1967/01 新築・未入居区分 中古
現況 空家 引渡・入居時期 即時
建ぺい率 容積率
駐車場区分 駐車場料金
駐車場備考
間取り内訳 DK6畳1室  洋室6.8畳1室  洋室5畳1室        
周辺環境
設備・条件 リノベーション システムキッチン 給湯 追い焚き 浴室乾燥機 ユニットバス 温水洗浄便座 エアコン 室内洗濯機置き場 TVドアホン エレベータ フローリング
小学校 中学校
物件番号 100136022850 情報有効期限
新規内装リフォーム済!

お問合せ物件番号 100136022850

株式会社ライヴス 東京都中野区中野4丁目5番1号 中野KIビル3階 TEL: 03-6454-0050 FAX: 03-6454-0051 宅建免許番号: 東京都知事免許(4)第86913号

条件の近い物件


  • 中野区 本町3丁目
  • 中野区中央3丁目 中古マンション1980万円 2DK
    中野区 中央3丁目

    東京メトロ丸ノ内線新中野駅

  • 中野区 本町4丁目
pagetop
Fudousan Plugin Ver.1.5.5