中野区・杉並区の最新不動産なら株式会社ライヴス


東京都中野区 東中野4丁目 中古マンション

販売価格 3699万円 専有面積 58.58m²
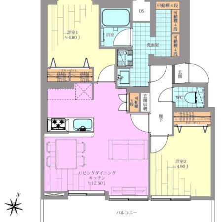
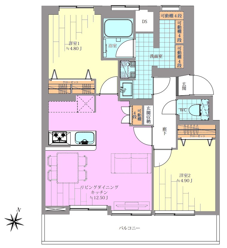
階数 4階 / 地上4階 間取り 2LDK
築年月 1965/03 取引態様
所在地 東京都中野区 東中野4丁目
交通 東京メトロ東西線落合駅 徒歩2分
JR総武線東中野駅 徒歩5分
お問合せ候補に追加
 

物件写真


物件詳細  マック東中野コート

物件種別 中古マンション 間取り 2LDK
価格 3699万円 専有面積 58.58m²
共益費・管理費 6000円 バルコニー面積 8.78m²
修繕積立金 6000円 向き
階数 4階 / 地上4階 建物構造 RC
管理人 管理形態 自主管理 
建築年月 1965/03 新築・未入居区分 中古
現況 空家 引渡・入居時期 相談
建ぺい率 容積率
駐車場区分 駐車場料金
駐車場備考
間取り内訳 LDK12.5畳1室  洋室4.9畳1室  洋室4.8畳1室        
周辺環境
設備・条件 リノベーション システムキッチン カウンターキッチン 食器洗い乾燥機 給湯 追い焚き 独立洗面台 浴室乾燥機 ユニットバス 室内洗濯機置き場 TVドアホン バルコニー フローリング
小学校 中学校
物件番号 100135942397 情報有効期限
新規内装リフォーム中!

お問合せ物件番号 100135942397

株式会社ライヴス 東京都中野区中野4丁目5番1号 中野KIビル3階 TEL: 03-6454-0050 FAX: 03-6454-0051 宅建免許番号: 東京都知事免許(4)第86913号

条件の近い物件

  • 中野区東中野4丁目 中古マンション3950万円 1LDK
    中野区 東中野4丁目

    東京メトロ東西線落合駅
  • 中野区東中野4丁目 中古マンション3999万円 2LDK
    中野区 東中野4丁目

    東京メトロ東西線落合駅

  • 中野区 東中野5丁目
pagetop
Fudousan Plugin Ver.1.5.5