中野区・杉並区の最新不動産なら株式会社ライヴス


東京都中野区 南台3丁目 新築戸建

販売価格 9880万円 建物面積 105.38m²
階数 地上3階 間取り 4LDK
建物構造 木造 取引態様 一般
所在地 東京都中野区 南台3丁目
交通 東京メトロ丸ノ内線方南町駅 徒歩10分
東京メトロ丸ノ内線中野富士見町駅 徒歩12分
お問合せ候補に追加
 

物件写真


物件詳細  南台3丁目 新築戸建 全1棟

物件種別 新築戸建 間取り 4LDK
価格 9880万円 建築年月 2026/2
建物構造 木造 階数(地下) 地上3階
土地面積(区画面積) 61.04m²(実測) 土地権利 所有権
用途地域 第一種中高層住居専用 都市計画 市街化区域
現況 未完成 引渡・入居時期 相談
建ぺい率 60 容積率 200
セットバック 私道負担
借地料 借地契約年月
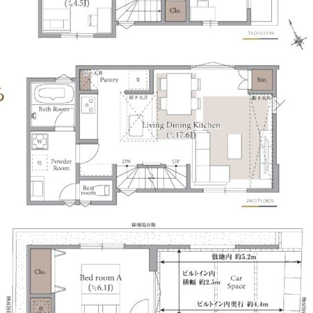
間取り内訳 1階洋室6.1畳 1階洋室4.3畳 2階LDK17.6畳 3階洋室5.1畳 3階洋室4.5畳     
周辺環境 ■まいばすけっと中野弥生町5丁目店 約470m■セブンイレブン南台店 約320m
設備・条件 ガスコンロ 三口コンロ システムキッチン カウンターキッチン 食器洗い乾燥機 給湯 追い焚き 洗髪洗面化粧台 独立洗面台 バス専用 浴室乾燥機 ユニットバス バス・トイレ別 温水洗浄便座 床暖房 W.INクローゼット TVドアホン
小学校 南台小学校 約420m 中学校 南中野中学校 約360m
物件番号 情報有効期限
■全1棟■ゆとりの4LDK+車庫■LDKは広々17.6帖■ご家族で使える広々としたファミリークローク1.2帖■キッチンにはパントリー付■地震に強い耐震等級3取得■省エネ基準適合住宅■ガス乾燥機の乾太くん設置■住宅性能表示W取得(設計+建設)

お問合せ物件番号 

株式会社ライヴス 東京都中野区中野4丁目5番1号 中野KIビル3階 TEL: 03-6454-0050 FAX: 03-6454-0051 宅建免許番号: 東京都知事免許(4)第86913号

条件の近い物件

  • 南台4丁目 新築戸建 全3棟9480万円 4LDK
    中野区 南台4丁目

    東京メトロ丸ノ内線方南町駅
  • 南台4丁目 新築戸建 全2棟9990万円 4LDK
    中野区 南台4丁目

    東京メトロ丸ノ内線方南町駅
pagetop
Fudousan Plugin Ver.1.5.5